Plattegrond tekenen: Zo maak je de basis voor een perfect Interieurplan

Een goede plattegrond is de basis van elk interieurontwerp. Of je nu een woonkamer opnieuw wilt indelen, je hele huis gaat verbouwen of gewoon wilt weten of die nieuwe bank wel past: een plattegrond tekenen geeft overzicht en helpt je slimme keuzes maken. In dit blog leg ik stap voor stap uit hoe je zelf een plattegrond kunt tekenen en waar je op moet letten.

Waarom een plattegrond tekenen belangrijk is

Een plattegrond laat in één oogopslag zien hoe groot de ruimte is en hoe meubels daarin passen. Het voorkomt miskopen (zoals een te grote bank of kast) en helpt je om logisch na te denken over looproutes, lichtinval en de functie van de ruimte.

Wat heb je nodig om een plattegrond te tekenen?

Of je nu met potlood werkt of liever digitaal tekent: met de juiste benodigdheden maak je het jezelf een stuk makkelijker.

Handmatig tekenen

  • Rolmaat of lasermeter 
  • Potlood, gum en liniaal 
  • Ruitjespapier of millimeterpapier 
  • Schaar en papier 
  • (optioneel) Transparanten/vellen kalkpapier – handig om verschillende versies of lagen te maken (bijv. verlichting, meubels, elektra)
Benodigheden plattegrond tekenen

Digitaal tekenen

  • Computer, tablet of laptop 
  • Gratis tools zoals Floorplanner, Roomstyler of SketchUp 
  • Digitale schaalinstelling

Stap 1. Meet de ruimte op

Pak een rolmaat of lasermeter en meet de ruimte nauwkeurig op. Noteer:

  • Lengte en breedte van de kamer
  • Hoogte van het plafond
  • Afmetingen van deuren, ramen en vaste elementen (radiatoren, haard, trap)

 

Hoe nauwkeuriger je meet, hoe beter je plattegrond straks klopt.

Stap 2: Kies je manier van tekenen

Er zijn verschillende manieren om een plattegrond te maken:

  • Handmatig tekenen
  • Digitaal tekenen

Kies wat bij jou past.

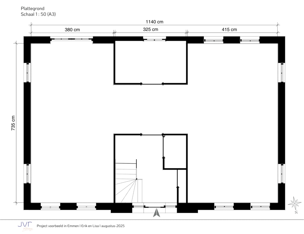
blanco plattegrond om de bnedenverdieping in te delen

Stap 3: Teken op schaal

Gebruik een schaal, zodat je meubels realistisch kunt intekenen. Bijvoorbeeld: 1 cm op papier = 50 cm in werkelijkheid. Dit voorkomt dat meubels op papier passen, maar in het echt niet. 

Met de hand (papier en potlood)

  • Gebruik ruitjespapier of millimeterpapier
  • Kies een schaal (bijv. 1 cm = 50 cm in werkelijkheid)
  • Teken eerst de omtrek van de ruimte
  • Voeg daarna ramen, deuren en vaste elementen toe
  • Voeg kompas toe, geef het noorden aan.
  • noteer je naam, document en schaal op het papier.

Stap 4: Voeg vaste stopcontacten en lichtpunten toe

Als je plattegrond eenmaal getekend is, is het tijd om stopcontacten en lichtpunten in te tekenen. Door dit nu alvast te doen, krijg je veel beter inzicht in waar alles zit: waar je straks apparatuur aansluit, waar je verlichting hangt, en waar eventueel extra punten nodig zijn.

Later, wanneer je de indeling van je meubels en zones definitief maakt, kun je deze informatie erbij pakken. Zo voorkom je dat je later met verlengsnoeren in de weer moet of dat een lamp niet handig aansluit bij de indeling.

Stap 5: Meubels intekenen

In de volgende stap ga je pas écht indelen: meubels een plek geven en sfeer in de ruimte brengen. Wil je weten hoe je dit doet? Bekijk dan de ultieme gids voor het indelen van je (woon)ruimte.

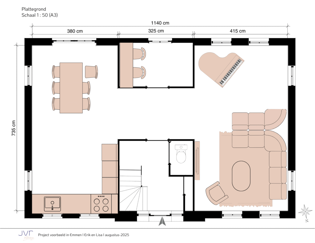
plattegrond met verschillende indelingen

Voor jou

Een slimme indeling begint met een goede plattegrond en de juiste maten. Zo creëer je een huis dat zowel functioneel als rustig en gezellig is.

Wil jij ook een sfeervol interieur dat helemaal bij jullie past? Ik denk graag met jullie mee over de juiste keuzes voor jullie interieur. 💙

Liefs,
Jorien

Gerelateerd

aan dit artikel